Η «οικία Κοκοβίκου» είναι το κινηματογραφικό σπίτι του Αντωνάκη και της Ελενίτσας, από την ελληνική ταινία «Η δε γυνή να φοβήται τον άνδρα»-
Στην αποκατάσταση του κτηρίου, επί της οδού Τριπόδων 32, της γνωστής «οικίας Κοκοβίκου», στην Πλάκα και τη μετατροπή της σε πολιτιστικό χώρο προχωρά το Υπουργείο Πολιτισμού στο πλαίσιο της πολιτικής του για τη δημιουργία πολιτιστικών πυρήνων στο κέντρο της Αθήνας.
Ιστορικό διατηρητέο μνημείο
Το κτήριο, σε ερειπιώδη κατάσταση σήμερα, έχει χαρακτηριστεί ως ιστορικό διατηρητέο μνημείο με τον περιβάλλοντα χώρο του, διότι αποτελεί εξαιρετικό δείγμα Αθηναϊκού σπιτιού, ενώ η διάσωσή του συμβάλλει στην ιστορία της Ελληνικής Αρχιτεκτονικής.

Οι μελέτες για την αποκατάσταση του κτηρίου και του περιβάλλοντος χώρου του εκπονήθηκαν με πόρους του Υπουργείου Πολιτισμού. Το έργο χρηματοδοτείται από το Περιφερειακό Επιχειρησιακό Πρόγραμμα της Αττικής- ΕΣΠΑ 2021-2027 με 1.700.000 ευρώ.

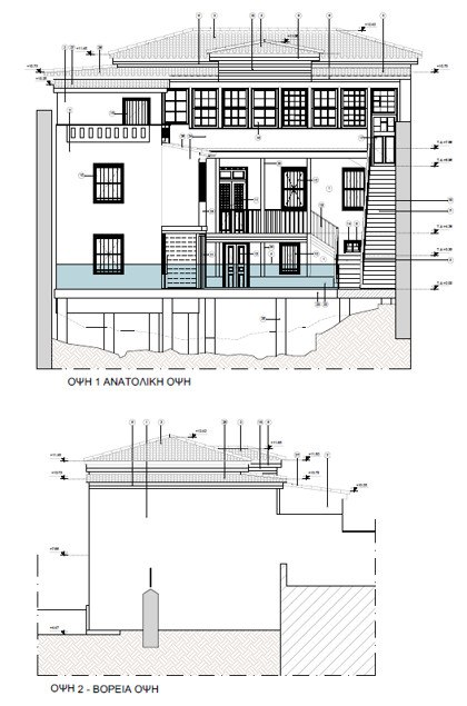
Ποιες είναι εργασίες που θα πραγματοποιηθούν
Σύμφωνα με την εγκριθείσα μελέτη, αποκαθίσταται η ιστορική εικόνα του κτηρίου, αναδεικνύεται ο μνημειακός του χαρακτήρας, ενώ διασφαλίζεται η καθολική προσβασιμότητα.
Εκτελούνται εργασίες αποκατάστασης του κελύφους και ανασύστασης του κυρίως προσκτίσματος–συνοδού διώροφου κτηρίου, ώστε να αποκατασταθεί η τυπολογία της Αθηναϊκής αυλής, συνδυαστικά με την διαχείριση του μετώπου της οδού Τριπόδων, καθώς και της λειτουργικής αναβάθμισης του κτηρίου για τη νέα του χρήση.
Ταυτόχρονα, συντηρούνται τα αρχαία αρχιτεκτονικά λείψανα που έχουν εντοπισθεί στο εσωτερικό του κτηρίου και στον αύλειο χώρο του, ενώ παράλληλα, διασφαλίζεται η απρόσκοπτη θέασή τους.

Πρόταση-αποκατάστασης-ανατολική-βόρεια-όψη
«Οικία Κοκοβίκου», η ιστορία του κτηρίου
Το κτήριο, συνολικής επιφανείας 266 τ.μ., είναι τριώροφο με ξύλινο συνεχές χαγιάτι, σε όλες τις στάθμες, ανταποκρινόμενο στα πρότυπα της πρώιμης οθωνικής περιόδου. Αποτελεί μέρος συγκροτήματος με άλλοτε συνοδά κτήρια και εσωτερική αυλή, τυπολογία που επικράτησε στα χρόνια της Οθωμανοκρατίας, στην Πλάκα.

Η παρουσία του κυρίως κτηρίου μαζί με τα προσκτίσματά του, τεκμηριώνεται την περίοδο 1836-1837. Αποτελεί παλίμψηστο λόγω της παρουσίας σωζόμενων ορατών αρχαιοτήτων, σε στάθμη χαμηλότερη από το δάπεδο του ισογείου, τόσο εντός του κτηρίου στην κατώτερη στάθμη του, όσο και στον άλλοτε αύλειο χώρο.
Έχει δεχτεί σειρά επεμβάσεων και τροποποιήσεων λόγω μεταλλαγής του αύλειου χώρου του (καθαιρέσεις συνοδών κτισμάτων και μανδρότοιχου), διενέργειας ανασκαφικής έρευνας σε ολόκληρο σχεδόν τον χώρο και στο εσωτερικό του κτηρίου, και συνολικής επισκευής.
Η μορφή του ακινήτου διασώζεται σε τεκμήρια εποχής.


