Ονομάζομαι Αλίκη Σαμαρά και ως τελειόφοιτη του Τμήματος Αρχιτεκτόνων Μηχανικών του Αριστοτελείου Πανεπιστημίου Θεσσαλονίκης επέλεξα να αφιερώσω τη διπλωματική μου εργασία σε ένα ζήτημα με έντονη κοινωνική διάσταση: τη μελλοντική διαβίωση των ενηλίκων στο φάσμα του αυτισμού.
Με τίτλο «Αρχιτεκτονική και αυτισμός: ένα κέντρο υποστήριξης ενηλίκων στο φάσμα του αυτισμού στην Καστοριά», η εργασία διερευνά πώς ο αρχιτεκτονικός σχεδιασμός μπορεί να λειτουργήσει ως εργαλείο φροντίδας, σταθερότητας και ουσιαστικής κοινωνικής ένταξης. Η εργασία αφορά τον σχεδιασμό ενός κέντρου υποστήριξης ενηλίκων στο φάσμα του αυτισμού στην περιοχή Χλόη της Καστοριάς και διερευνά πώς ο αρχιτεκτονικός σχεδιασμός μπορεί να συμβάλει στη δημιουργία ενός ασφαλούς, προβλέψιμου και υποστηρικτικού περιβάλλοντος που ενισχύει την κοινωνική ένταξη και την αυτονομία των ατόμων.
Αφετηρία της μελέτης αποτέλεσε ο προβληματισμός γύρω από τη μελλοντική διαβίωση και φροντίδα των ενηλίκων με αυτισμό, όταν το οικογενειακό τους περιβάλλον αδυνατεί πλέον να ανταποκριθεί στον υποστηρικτικό του ρόλο. Ο αυτισμός αποτελεί μια δια βίου νευροαναπτυξιακή και νευροψυχιατρική διαταραχή, η οποία χαρακτηρίζεται από ποικιλία ως προς τη μορφή των συμπτωμάτων, τον συνδυασμό των δυσκολιών και τον βαθμό λειτουργικότητας.
Το γεγονός αυτό καθιστά αναγκαία την ύπαρξη οργανωμένων δομών για τη μακροχρόνια στέγαση ενηλίκων με αυτισμό, ικανών να προσφέρουν ασφάλεια, σταθερότητα και καθημερινή υποστήριξη προσαρμοσμένη στις ανάγκες κάθε ατόμου. Η περιοχή μελέτης επιλέχθηκε λόγω του ημιαστικού της χαρακτήρα. Αφενός βρίσκεται σε άμεση εγγύτητα με τον αστικό ιστό της Καστοριάς, εξασφαλίζοντας εύκολη πρόσβαση στις υπηρεσίες και τις υποδομές της πόλης, και αφετέρου διαθέτει έντονη παρουσία φυσικού τοπίου, συμβάλλοντας στη διαμόρφωση ενός ήρεμου και ελεγχόμενου περιβάλλοντος.
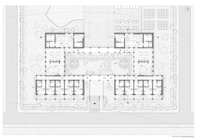
Η περιοχή χαρακτηρίζεται από χρήσεις κατοικίας και εκπαίδευσης, στοιχεία που ενισχύουν την ένταξη στον κοινωνικό ιστό, ενώ η ύπαρξη πρασίνου δημιουργεί ευνοϊκές συνθήκες για υπαίθριες δραστηριότητες και επαφή με τη φύση. Το κτιριολογικό πρόγραμμα περιλαμβάνει κέντρο ημέρας συνολικής επιφάνειας 1.400 τ.μ., δύο ισόγεια κτίρια υποστηριζόμενης διαβίωσης συνολικής επιφάνειας 700 τ.μ., καθώς και υπαίθριους χώρους δραστηριοτήτων, όπως θερμοκήπιο, καλλιέργειες και δεξαμενή νερού.
Κεντρική σχεδιαστική ιδέα αποτελεί η έννοια της «γειτονιάς», η οποία μεταφράζεται σε ένα σύνολο μικρής κλίμακας με σαφή ιεράρχηση χώρων, κοινόχρηστες αυλές, διαδρομές και ενδιάμεσους χώρους που επιτρέπουν τη σταδιακή κοινωνική επαφή και την ελεύθερη επιλογή μεταξύ συμμετοχής και απομόνωσης. Μορφολογικά, η πρόταση αντλεί στοιχεία από την τοπική αρχιτεκτονική της Καστοριάς, επανερμηνεύοντας τη χρήση της πέτρας, τη σημασία των υπαίθριων και ημιυπαίθριων χώρων και την ανθρώπινη κλίμακα, σε συνδυασμό με σύγχρονα υλικά και κατασκευαστικές λύσεις.
Στόχος της εργασίας είναι η δημιουργία ενός περιβάλλοντος που προάγει την αυτονομία, την αξιοπρέπεια και την ουσιαστική κοινωνική ένταξη των ενηλίκων στο φάσμα του αυτισμού, όπου ο χώρος λειτουργεί υποστηρικτικά, μειώνει το άγχος και προσφέρει συνθήκες σταθερότητας, φροντίδας και συμπερίληψης.



